39840 Braewood Court

Murrieta, CA 92563

$ 675,000

Price

3

Beds

2.5

Baths

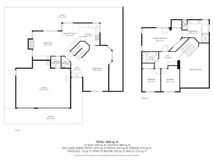
1,840 Sq. Ft.

$367 / Sq. Ft.

0 Days On Market

Favorite

Share

Alta Murrieta Community

Have You Been Pre-Qualified? Start Now

Listing provided by agent Armando Olmeda BRE# 02121120 at Re/Max Top Producers.

Last Updated: 0 days ago

Welcome to this beautiful Murrieta home tucked away in a quiet cul-de-sac, offering the perfect blend of space, privacy, and flexibility. With 5 bedrooms and 3 bathrooms (including a full bath downstairs), this home is ideal for families, extended family living, or investors looking for long-term equity growth. The open and functional layout features a bright living room, formal dining area, and a spacious kitchen that flows into the family room—perfect for both everyday life and entertaining. The home also includes a 3-car garage, with ADU potential to convert part of the garage into a separate unit using the private side entrance (buyer to verify). Enjoy the backyard with a covered patio, ready for entertaining, gardening, or future additions. The property has been upgraded with new electrical, plumbing, and remodeled finishes—offering turnkey value and comfort. Located minutes from top-rated Murrieta schools, shopping, parks, the 215/15 freeways, and just a short drive to the Temecula Wine Country, this home offers the lifestyle and location you've been looking for. Don’t miss this opportunity!

Show More
Property Type Single Family Residence
Lot Size 7,405 sq. ft.
Year Built 1988
MLS # CV25260274
Listing Type Active
Heating Central
Cooling Central Air
Laundry Individual Room, Inside, See Remarks
Parking Driveway, Garage

Payment Calculator

40% Complete (success)
80% Complete (danger)
20% Complete
80% Complete (danger)
60% Complete (warning)
Principal and Interest
Property Taxes
Homeowners' Insurance
HOA Dues
Mortgage Insurance
Image Calculator Icon Customize Calculations | Compare Mortgage Rates

Property Details for: 39840 Braewood Court

Interior Features

Bathroom Information
  • 2 full baths, 1 half bath
Laundry Information
  • Individual Room
  • Inside
  • See Remarks
Fireplace Information
  • Family Room
  • Living Room
Interior Features
  • Balcony
  • High Ceilings
  • Open Floorplan
  • Pantry
  • Recessed Lighting
Heating & Cooling
  • Central Air
  • Central

Parking / Garage, Multi-Unit Information, Location Details

Interior Information
  • Balcony
  • High Ceilings
  • Open Floorplan
  • Pantry
  • Recessed Lighting
Parking Information
  • Driveway
  • Garage
Community Features
  • Units in Complex (Total) 2335

Exterior Features

Property / Lot Details

Property Features
  • Valley
Lot Information
  • Lot Size (Sq. Ft) 7,405
Property Information
  • Tax Parcel Number: 912322027

Recently Sold Homes Near 39840 Braewood Court

Nearby Businesses

  • Grocery Stores
  • Drug Stores
  • Coffee Shops
  • Restaurants
  • Health & Medical
  • Fitness & Activity
  • Arts & Entertainment
  • Nightlife & Bars
    Browse all businesses in Murrieta, CA, 92563

    Tour This Home

    SATURDAY

    29

    NOV

    SUNDAY

    30

    NOV

    MONDAY

    1

    DEC

    TUESDAY

    2

    DEC

    WEDNESDAY

    3

    DEC

    THURSDAY

    4

    DEC

    FRIDAY

    5

    DEC

    Schedule A Tour
    Tom Bashe, Broker Associate

    Tom Bashe

    Broker Associate

    951-501-2455 Contact Tom Bashe
    Listing provided by agent Armando Olmeda BRE# 02121120 at Re/Max Top Producers.

    Last Updated: 0 days ago

    Similar Homes For Sale

    View All 86 Homes