23360 Mountain Song Loop

Murrieta, CA 92562

$ 699,900

Price

5

Beds

2.5

Baths

2,621 Sq. Ft.

$267 / Sq. Ft.

2 Days On Market

Favorite

Share

Grizzly Ridge Community

Have You Been Pre-Qualified? Start Now

Listing provided by agent Jennifer Summers BRE# 01954272 at Redfin Corporation.

Last Updated: 0 days ago

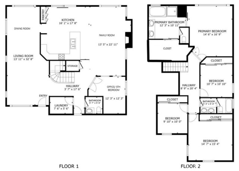
Beautiful Pool Home with RV Parking in Desirable Grizzly Ridge – No HOA! Welcome to this perfect single-family home in one of Murrieta’s most sought-after neighborhoods—Grizzly Ridge, where you’ll enjoy no HOA, spacious living, and a prime location in the award-winning Murrieta School District. Go inside to a welcoming foyer with formal living and dining areas, perfect for gatherings. There are heated floors from the entry to the kitchen and in the kitchen. The open family room features a cozy fireplace and flows seamlessly into the bright kitchen, complete with a breakfast nook, peninsula with bar seating, stainless steel appliances, and trendy two-tone cabinetry. The backyard is a true entertainer’s paradise, boasting a sparkling pool and spa, built-in fire pit area, and plenty of space to soak up the California sunshine. Upstairs, the spacious primary suite impresses with vaulted ceilings and an en suite bath featuring a soaking tub, separate shower, and dual vanities. A 3-car garage provides ample storage and parking. Conveniently located near shopping, freeways, historic downtown Murrieta, and the renowned Temecula Wine Country—this home has it all!

Show More
Property Type Single Family Residence
Lot Size 8,712 sq. ft.
Year Built 2000
MLS # SW26002704
Listing Type Active
Heating Central, Electric
Cooling Central Air
Pool Private, Filtered, Heated, Gas Heat, In Ground, Permits, Waterfall
Laundry Gas & Electric Dryer Hookup, Individual Room, Inside, Washer Hookup
Parking Direct Garage Access, Driveway, Concrete, Garage Faces Front, Garage - Two Door, Garage Door Opener

Payment Calculator

40% Complete (success)
80% Complete (danger)
20% Complete
80% Complete (danger)
60% Complete (warning)
Principal and Interest
Property Taxes
Homeowners' Insurance
HOA Dues
Mortgage Insurance
Image Calculator Icon Customize Calculations | Compare Mortgage Rates

Property Details for: 23360 Mountain Song Loop

Interior Features

Bathroom Information
  • 2 full baths, 1 half bath
Laundry Information
  • Gas & Electric Dryer Hookup
  • Individual Room
  • Inside
  • Washer Hookup
Fireplace Information
  • Family Room
  • Gas
Interior Features
  • Ceiling Fan(s)
  • Crown Molding
  • Granite Counters
  • High Ceilings
  • Wired for Sound
Heating & Cooling
  • Central Air
  • Central
  • Electric

Parking / Garage, Multi-Unit Information, Location Details

Interior Information
  • Ceiling Fan(s)
  • Crown Molding
  • Granite Counters
  • High Ceilings
  • Wired for Sound
Parking Information
  • Direct Garage Access
  • Driveway
  • Concrete
  • Garage Faces Front
  • Garage - Two Door
  • Garage Door Opener
Community Features
  • Units in Complex (Total) 397

Exterior Features

Pool & Spa Information
  • Private
  • Filtered
  • Heated
  • Gas Heat
  • In Ground
  • Permits
  • Waterfall
  • Private
  • Heated
  • In Ground
  • Permits

Property / Lot Details

Property Features
  • Hills
  • Neighborhood
  • Pool
Lot Information
  • Lot Size (Sq. Ft) 8,712
Property Information
  • Tax Parcel Number: 906421012

Recently Sold Homes Near 23360 Mountain Song Loop

Nearby Businesses

  • Grocery Stores
  • Drug Stores
  • Coffee Shops
  • Restaurants
  • Health & Medical
  • Fitness & Activity
  • Arts & Entertainment
  • Nightlife & Bars
    Browse all businesses in Murrieta, CA, 92562

    Tour This Home

    FRIDAY

    9

    JAN

    SATURDAY

    10

    JAN

    SUNDAY

    11

    JAN

    MONDAY

    12

    JAN

    TUESDAY

    13

    JAN

    WEDNESDAY

    14

    JAN

    THURSDAY

    15

    JAN

    Schedule A Tour
    Tom Bashe, Broker Associate

    Tom Bashe

    Broker Associate

    951-501-2455 Contact Tom Bashe
    Listing provided by agent Jennifer Summers BRE# 01954272 at Redfin Corporation.

    Last Updated: 0 days ago

    Similar Homes For Sale

    View All 86 Homes