26850 Valensole Court

Murrieta, CA 92562

$ 650,000

Price

3

Beds

2.5

Baths

1,678 Sq. Ft.

$387 / Sq. Ft.

55 Days On Market

Favorite

Share

Have You Been Pre-Qualified? Start Now

Listing provided by agent Kimberly Rehnquist BRE# 01270300 at Redfin Corporation.

Last Updated: 4 days ago

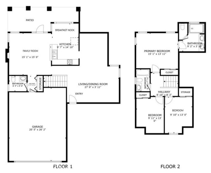
PRICE IMPROVED!! Bring us your offer. Beautifully updated home in a desirable cul-de-sac location with stunning hill views and LOW TAXES and NO HOA! This property boasts a bright, open layout with vaulted ceilings, bamboo flooring, and elegant wood shutters on the windows. The spacious living and dining rooms off the entry flow seamlessly into the family room, where a cozy fireplace with tile surround and mantle creates the perfect gathering spot. The kitchen offers a breakfast nook, warm wood cabinetry, and an open design to the family room for easy entertaining. Upstairs, find 3 bedrooms and 2 bathrooms, including a newly upgraded primary suite featuring a huge tiled shower, dual closets (one walk-in), and modern finishes. Additional highlights include a NEW A/C, NEW water heater, epoxy garage floors, and a HAP water filtration system. The BEAUTIFUL backyard is a true retreat with low-maintenance artificial turf, a covered patio, and peaceful views of the hills. With a direct access 2-car garage and a convenient location close to local schools, shopping, dining, and the 215 freeway, this home combines comfort, style, and everyday convenience.

Show More
Property Type Single Family Residence
Lot Size 9,583 sq. ft.
Year Built 1988
MLS # SW25200186
Listing Type Active
Heating Central
Cooling Central Air
Laundry Gas & Electric Dryer Hookup, Individual Room, Inside, Washer Hookup
Parking Direct Garage Access, Driveway, Garage - Single Door

Payment Calculator

40% Complete (success)
80% Complete (danger)
20% Complete
80% Complete (danger)
60% Complete (warning)
Principal and Interest
Property Taxes
Homeowners' Insurance
HOA Dues
Mortgage Insurance
Image Calculator Icon Customize Calculations | Compare Mortgage Rates

Property Details for: 26850 Valensole Court

Interior Features

Bathroom Information
  • 2 full baths, 1 half bath
Laundry Information
  • Gas & Electric Dryer Hookup
  • Individual Room
  • Inside
  • Washer Hookup
Fireplace Information
  • Family Room
Interior Features
  • Ceiling Fan(s)
  • Granite Counters
  • High Ceilings
  • Open Floorplan
Heating & Cooling
  • Central Air
  • Central

Parking / Garage, Multi-Unit Information, Location Details

Interior Information
  • Ceiling Fan(s)
  • Granite Counters
  • High Ceilings
  • Open Floorplan
Parking Information
  • Direct Garage Access
  • Driveway
  • Garage - Single Door

Exterior Features

Property / Lot Details

Property Features
  • Mountain(s)
  • Neighborhood
Lot Information
  • Lot Size (Sq. Ft) 9,583
Property Information
  • Tax Parcel Number: 947142001

Nearby Businesses

  • Grocery Stores
  • Drug Stores
  • Coffee Shops
  • Restaurants
  • Health & Medical
  • Fitness & Activity
  • Arts & Entertainment
  • Nightlife & Bars
    Browse all businesses in Murrieta, CA, 92562

    Tour This Home

    TUESDAY

    4

    NOV

    WEDNESDAY

    5

    NOV

    THURSDAY

    6

    NOV

    FRIDAY

    7

    NOV

    SATURDAY

    8

    NOV

    SUNDAY

    9

    NOV

    MONDAY

    10

    NOV

    Schedule A Tour
    Tom Bashe, Broker Associate

    Tom Bashe

    Broker Associate

    951-299-9397 Contact Tom Bashe
    Listing provided by agent Kimberly Rehnquist BRE# 01270300 at Redfin Corporation.

    Last Updated: 4 days ago