31456 Magnolia

Murrieta, CA 92563

$ 630,000

Price

3

Beds

2.5

Baths

1,956 Sq. Ft.

$322 / Sq. Ft.

1 Days On Market

Favorite

Share

Have You Been Pre-Qualified? Start Now

Listing provided by agent Ana Dittamo BRE# 01350665 at Redfin Corporation.

Last Updated: 0 days ago

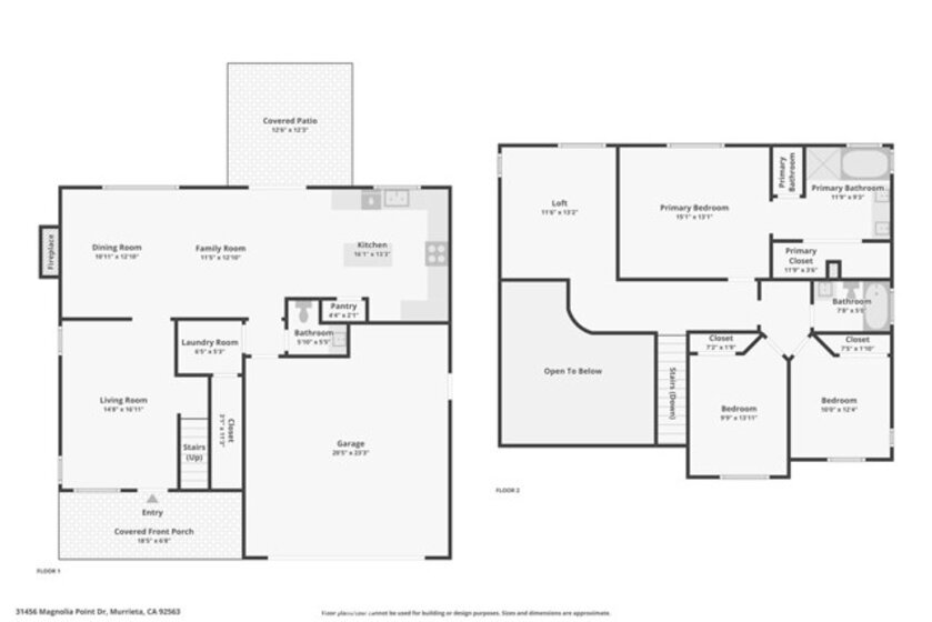
Turn Key 3 bed, 2.5 bath home is ready to be made yours and is located in the Rancho Bella Vista community! Offering great curb appeal, an attached 2-car garage, a covered porch area to enjoy, and leased Solar Panels. Also, the interior is spacious with almost 2,000 sqft of living space, high ceilings, recessed lights, carpet, and tile flooring. Enter into the formal living room and dining room which flows into the family room with fireplace and sits just off of the kitchen with granite countertops, on-trend dual-color white and blue cabinetry, with center island, and a pantry. All 3 bedrooms are located on the 2nd floor including a bonus loft area. The large primary suite features a private ensuite with dual sinks, a soaking tub, and a separate shower. There is also a full-size hall bathroom for the 2 secondary bedrooms, and a half bathroom for guests. Enjoy the fully fenced backyard with grass and concrete areas, a gazebo to relax under, and plenty of space to make your own! Conveniently located near schools, trails, shopping, dining, and not far from the 215 and 15 Fwys! Schedule your tour today!

Show More
Property Type Single Family Residence
Lot Size 5,663 sq. ft.
Year Built 2002
MLS # OC25274903
Listing Type Active
Heating Central
Cooling Central Air
Laundry Individual Room, Inside
Parking Driveway, Paved, Garage, Garage Faces Front

Payment Calculator

40% Complete (success)
80% Complete (danger)
20% Complete
80% Complete (danger)
60% Complete (warning)
Principal and Interest
Property Taxes
Homeowners' Insurance
HOA Dues
Mortgage Insurance
Image Calculator Icon Customize Calculations | Compare Mortgage Rates

Property Details for: 31456 Magnolia

Interior Features

Bathroom Information
  • 2 full baths, 1 half bath
Laundry Information
  • Individual Room
  • Inside
Fireplace Information
  • Family Room
Interior Features
  • Ceiling Fan(s)
  • Granite Counters
  • High Ceilings
  • Pantry
  • Recessed Lighting
  • Storage
Heating & Cooling
  • Central Air
  • Central

Parking / Garage, Multi-Unit Information, Location Details

Interior Information
  • Ceiling Fan(s)
  • Granite Counters
  • High Ceilings
  • Pantry
  • Recessed Lighting
  • Storage
Parking Information
  • Driveway
  • Paved
  • Garage
  • Garage Faces Front

Exterior Features

Property / Lot Details

Property Features
  • Neighborhood
Lot Information
  • Lot Size (Sq. Ft) 5,663
Property Information
  • Tax Parcel Number: 964272019

Nearby Businesses

  • Grocery Stores
  • Drug Stores
  • Coffee Shops
  • Restaurants
  • Health & Medical
  • Fitness & Activity
  • Arts & Entertainment
  • Nightlife & Bars
    Browse all businesses in Murrieta, CA, 92563

    Tour This Home

    MONDAY

    15

    DEC

    TUESDAY

    16

    DEC

    WEDNESDAY

    17

    DEC

    THURSDAY

    18

    DEC

    FRIDAY

    19

    DEC

    SATURDAY

    20

    DEC

    SUNDAY

    21

    DEC

    Schedule A Tour
    Tom Bashe, Broker Associate

    Tom Bashe

    Broker Associate

    951-501-2455 Contact Tom Bashe
    Listing provided by agent Ana Dittamo BRE# 01350665 at Redfin Corporation.

    Last Updated: 0 days ago